Nieuw
Financieel en beschikbaarheid
- Prijs
- € 235.000
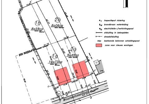
Gebouw & terrein
- Perceel opp.
- 1.932 m²
- Terreindiepte
- 88 m
- Oriëntatie tuin
- West
Stedenbouwkundige informatie
- Bestemming
- Woongebied met landelijk karakter
- Bouwvergunning
- Nee
- Verkavelingsvergunning
- Ja
- Voorkooprecht
- Nee
- Vonnissen
- Nee
- As build attest
- Nee
- Overstromingsrisico
- Niet gelegen in een overstromingsgevoelig gebied
- P-score
- D
Vragen of interesse over deze eigendom? Contacteer ons!
Of bel 016 90 10 21





